隨著建筑裝配式政策落地,各地政府的大力推廣,裝配式行業如雨后的春筍蓬勃發展。做為裝配式建筑的主角alc板與鋼結構結合使用也迎來了空前的發展機遇。
alc板相對傳統砌塊最大的優勢就是干作業,施工快捷方便;鋼結構相對框架混凝土結構最明顯的優勢也是施工速度快。從某種意義上講,alc板與鋼結構結合做建筑就是“黃金搭檔”組合。
alc外墻板的安裝方法有豎墻板、內嵌外墻豎板、外墻橫板、內嵌外墻橫板四種。無論豎裝板還是橫裝板,alc板做為外墻板與鋼結構結合使用時,建筑物的高度應當小于等于24m。
alc板相對傳統砌塊最大的優勢就是干作業,施工快捷方便;鋼結構相對框架混凝土結構最明顯的優勢也是施工速度快。從某種意義上講,alc板與鋼結構結合做建筑就是“黃金搭檔”組合。
alc外墻板的安裝方法有豎墻板、內嵌外墻豎板、外墻橫板、內嵌外墻橫板四種。無論豎裝板還是橫裝板,alc板做為外墻板與鋼結構結合使用時,建筑物的高度應當小于等于24m。

鋼結構alc外墻板豎裝外掛式效果

鋼結構alc外墻板橫裝外掛式效果
alc外墻板安裝前,應當先做鋼筋混土或實心磚坎墻。該坎墻的高度應當高于室內地面200mm。具體基礎構造做法參考下圖:圖一做法適合嚴寒地區,圖二(1)做法適合于夏熱冬冷地區,圖二(2)使用與夏熱冬暖地區
alc外墻板基礎及勒腳構造做法(一)

alc外墻板基礎及勒腳構造做法(二)

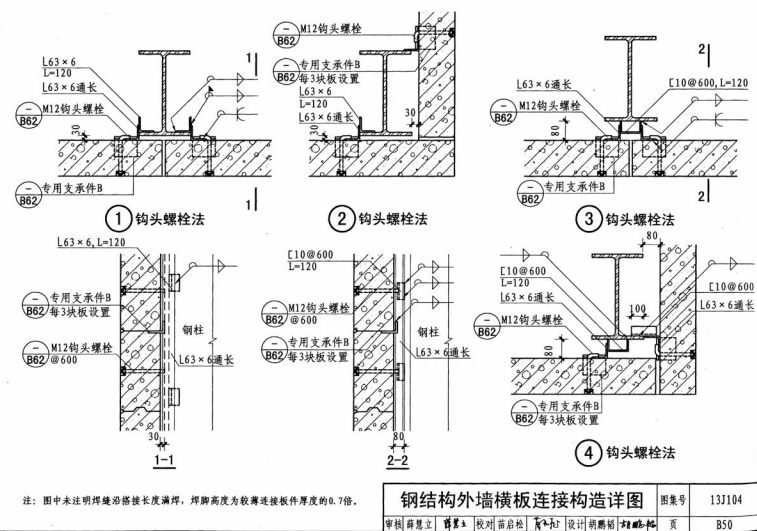
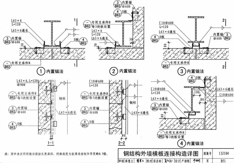
鋼結構alc外墻板安裝方法有二種:一種是鉤頭螺栓法,一種是內置錨固法。根據施工的方便快捷性來衡量,鉤頭螺栓法用的比較多做為重點介紹。鉤頭螺栓固定時,先把L63*6的通長角鋼電焊在鋼梁上,然后再用L63*6的通長角鋼電焊在第一根通長角鋼上,最后,用鉤頭螺栓一端穿透板材擰緊螺帽,另一端電焊在L63*6的角鋼上。需要注意的是,alc鋼結構外墻橫裝板每隔三層板材要加專用支撐件。
一、鋼結構alc外墻板橫裝鉤頭螺栓構造

二、鋼結構alc外墻板橫裝內置錨固連接構造

本文地址:http://m.desiccant.net.cn/shigonggongyi/201.html
上一篇:alc外墻板門窗安裝方法 下一篇:alc內隔墻由廠家安裝嗎
